
MIL-DTL-45360H(AT)
SHEET 2 OF 3
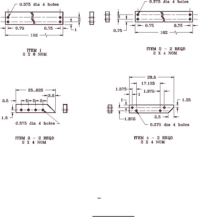
NOTES:
1. Material: lumber.
2. Dimensions are in inches.
3. Tolerance unless otherwise specified + 1/16.
FIGURE 5a. Saddle BII stowage.
31
For Parts Inquires submit RFQ to Parts Hangar, Inc.
© Copyright 2015 Integrated Publishing, Inc.
A Service Disabled Veteran Owned Small Business